Projekte
Willkommen beim Projekt Langensiepen - Ihr neues Zuhause in Mülheim
Wohnprojekt Langensiepen – Mülheim an der Ruhr
Nachhaltige Architektur im Einklang mit Natur und Stadt
Mit dem Projekt „Langensiepen“ in Mülheim an der Ruhr realisiert die Investhaus GmbH ein anspruchsvolles Wohnbauvorhaben mit klarer architektonischer Linie und nachhaltigem Gesamtkonzept.
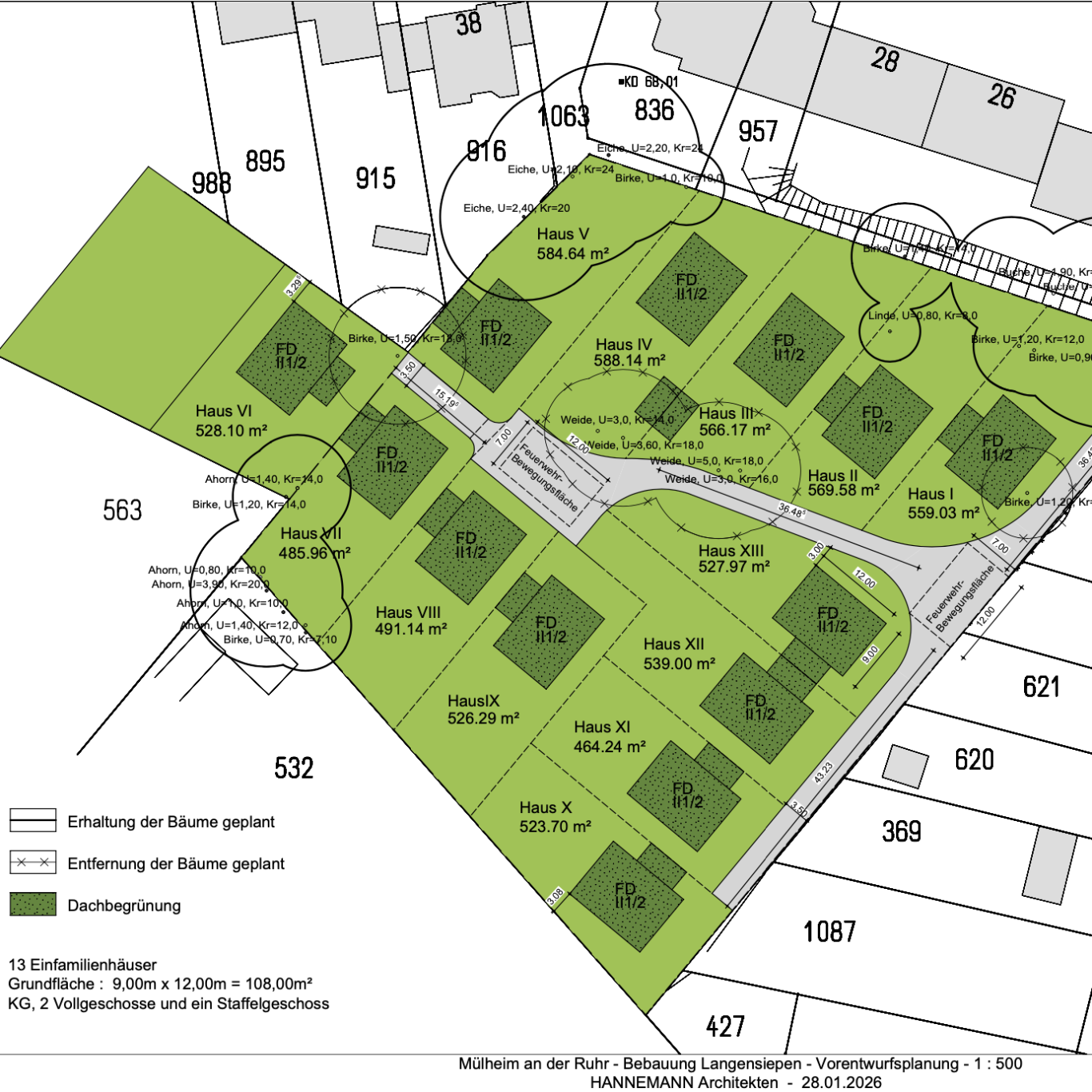
Auf dem Entwicklungsgrundstück entstehen 13 hochwertige Einfamilienhäuser, eingebettet in eine gewachsene, grüne Umgebung. Ziel des Projektes ist es, modernen Wohnraum mit hoher Lebensqualität zu schaffen – unter Berücksichtigung ökologischer, städtebaulicher und architektonischer Aspekte.

Projektübersicht
Standort: Mülheim an der Ruhr
Nutzung: 13 Einfamilienhäuser
Gebäudekonzept: Keller, zwei Vollgeschosse sowie Staffelgeschoss
Grundfläche je Haus: ca. 9,00 m x 12,00 m (108 m²)
Großzügige Grundstücksflächen
Flachdacharchitektur mit Dachbegrünung
Die Planung wurde in Zusammenarbeit mit HANNEMANN Architekten im Rahmen einer Vorentwurfsplanung entwickelt.
Architektur & Gestaltung
Die Häuser folgen einer modernen, klaren Formensprache mit zeitgemäßer Flachdacharchitektur.
Großzügige Fensterflächen sorgen für helle, lichtdurchflutete Räume und eine offene Wohnatmosphäre.
Das Staffelgeschoss verleiht den Gebäuden eine elegante Silhouette und schafft zusätzliche, attraktive Wohnflächen mit hoher Aufenthaltsqualität.
Die Dachbegrünung unterstreicht den nachhaltigen Charakter des Projekts und trägt sowohl zur ökologischen Ausgleichsfläche als auch zur Verbesserung des Mikroklimas bei.
Nachhaltigkeit & Grünkonzept
Ein besonderer Schwerpunkt liegt auf der Integration des vorhandenen Baumbestandes.
Große Teile der bestehenden Vegetation werden bewusst erhalten und in das Gesamtkonzept integriert.
Das Projekt verbindet:
Bestehende Naturstrukturen
Neue hochwertige Wohnbebauung
Nachhaltige Freiraumgestaltung
Funktionale Erschließung
Durch die Kombination aus Erhalt, gezielter Ergänzung und moderner Bauweise entsteht ein harmonisches Wohnquartier mit hoher Aufenthaltsqualität.
Wohnqualität & Umfeld
Das Projekt richtet sich an anspruchsvolle Familien und Eigentümer, die urbanes Wohnen mit naturnaher Umgebung verbinden möchten.
Die großzügigen Grundstücke bieten Raum für individuelle Gartengestaltung und private Rückzugsbereiche. Gleichzeitig gewährleistet die strukturierte Anordnung der Gebäude eine klare, ruhige Quartiersstruktur.
Moderne Bauweise, durchdachte Grundrisse und nachhaltige Architektur schaffen ein langfristig wertstabiles Wohnumfeld.
Projektstatus
Derzeit befindet sich das Projekt in der Planungsphase.
Weitere Informationen zum Vermarktungsstart folgen.
Bei Interesse an diesem oder zukünftigen Projekten der Investhaus GmbH freuen wir uns über Ihre Kontaktaufnahme.
